Building a dedicated HT room
Building a dedicated HT room
I've just started the designs for my dedicated HT. Plan is to do 3 TLAH's for the LCR and SLA's for the surrounds. I have the speakers already, purchased years ago on a closeout deal and never used them. Is it probably going to be best to do the triangle version for the LR mains and the rectangle for the center? Or do all 3 rectangle?
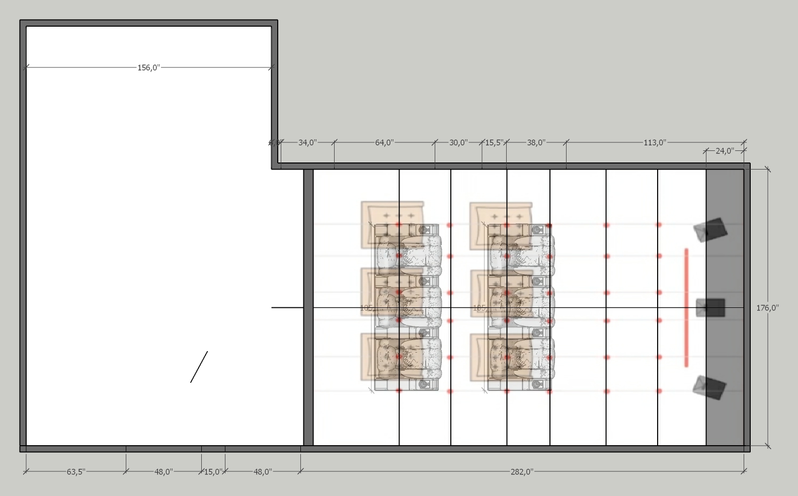
For the subs, I'd like to do 2 THTLP's, preferably @ 36".....but space constraints may cause me to do smaller. I'm planning to do a 150' AT screen with 2 feet behind for the speakers (the overhead shows 2 and 3 feet). The room dimensions are 22.8'x14'8"x7'8". Here are some of the plans thus far. I'm still figuring out how to best plan for sub placement, since they have such a large footprint....it makes it hard to just put them anywhere. Is it generally best to do the port facing up, down, towards the listening position? From what I understand, while it may be the most "convenient" to place both subs behind the screen, 2 subs on the same wall will likely result in acoustic issues?
For the subs, I'd like to do 2 THTLP's, preferably @ 36".....but space constraints may cause me to do smaller. I'm planning to do a 150' AT screen with 2 feet behind for the speakers (the overhead shows 2 and 3 feet). The room dimensions are 22.8'x14'8"x7'8". Here are some of the plans thus far. I'm still figuring out how to best plan for sub placement, since they have such a large footprint....it makes it hard to just put them anywhere. Is it generally best to do the port facing up, down, towards the listening position? From what I understand, while it may be the most "convenient" to place both subs behind the screen, 2 subs on the same wall will likely result in acoustic issues?
-
Grant Bunter
- Posts: 6912
- Joined: Mon Nov 28, 2011 11:12 am
- Location: Ilfracombe Queensland Australia
- Contact:
Re: Building a dedicated HT room
Sub placement shouldn't be determined by aesthetics (though it often is).
For best sound and addressing of room nodes, the "subwoofer crawl" determines best placement.
Here's hoping the subwoofer crawl will determine two good positions, 1 corner loaded behind the screen, and 1 corner loaded behind the seats.
So, if you can be more flexible at the design stage, and build the cabs first, it will sound better in the long run.
The curved SLA is designed as a centre. A full TLAH may be too much as a centre, as there is very little content in the centre channel anyway, which is more about sound imaging.
Hope this helps...
For best sound and addressing of room nodes, the "subwoofer crawl" determines best placement.
Here's hoping the subwoofer crawl will determine two good positions, 1 corner loaded behind the screen, and 1 corner loaded behind the seats.
So, if you can be more flexible at the design stage, and build the cabs first, it will sound better in the long run.
The curved SLA is designed as a centre. A full TLAH may be too much as a centre, as there is very little content in the centre channel anyway, which is more about sound imaging.
Hope this helps...
Built:
DR 250: x 2 melded array, 2x CD horn, March 2012 plans.
T39's: 4 x 20" KL3010LF , 2 x 28" 3012LF.
WH8: x 6 with melded array wired series/parallel.
Bunter's Audio and Lighting "like"s would be most appreciated...
DR 250: x 2 melded array, 2x CD horn, March 2012 plans.
T39's: 4 x 20" KL3010LF , 2 x 28" 3012LF.
WH8: x 6 with melded array wired series/parallel.
Bunter's Audio and Lighting "like"s would be most appreciated...
Re: Building a dedicated HT room
So at what point in the build is it recommended to do the crawl? Right when the Sheetrock goes up? Will that give an accurate feel for how the room will perform when complete? Or does it need to be performed at the end when carpet and things are in?
Regarding the center, I have heard doing identical vertical is ideal if possible, but isn’t always an option. Am I wrong? You certainly have more build experience than I do.
EDIT: Looks like there was a similar thread here regarding the TLAH vs SLA: viewtopic.php?f=5&t=25296
Regarding the center, I have heard doing identical vertical is ideal if possible, but isn’t always an option. Am I wrong? You certainly have more build experience than I do.
EDIT: Looks like there was a similar thread here regarding the TLAH vs SLA: viewtopic.php?f=5&t=25296
- Bill Fitzmaurice
- Site Admin
- Posts: 29008
- Joined: Tue May 02, 2006 5:59 pm
Re: Building a dedicated HT room
For a center I'd do a vertical SLA, as you have the room to do so. You can do TLAH as well, but there's not as much power content in the center as the L/R. The L/R don't get as constant a feed as L/R, but it's louder than the center when they do kick in.
Re: Building a dedicated HT room
Cool. Thank you for the feedback. I might do a TLAH for all 3, just for consistency, if there’s no downside. Any thoughts on triangle vs rectangle for the mains? Any advantage? The rectangle is certainly easier to build, but the triangle has the natural angle towards the listening position.
- Bill Fitzmaurice
- Site Admin
- Posts: 29008
- Joined: Tue May 02, 2006 5:59 pm
Re: Building a dedicated HT room
Triangle L/R and rectangle for the center would work well.
Re: Building a dedicated HT room
@CGRemakes, will the screen be DIY as well? Oh, and, are you locked in with the 2 foot measurement from the wall. I'm asking this just in case a sub needs to fit in there.
TomS
Re: Building a dedicated HT room
Yes, I will be DIYing the screen as well. I am not 100 percent locked in at 24, it just has to be a somewhat reasonable distance from the seats. I know there needs to be a decent amount of space from the walls for the sub to breathe, and I don’t want the port to be directly behind the screen and create waves. I was thinking maybe with the THTLP, I could do the port firing down or out the front with the mouth out the bottom? Figured that way, the port isn’t firing directly into the screen. Does my logic make sense? And if so, what distance from the back wall and screen would be sufficient? I am open to suggestions. I am not set on a 36” sub, so I have some flexibility.
-
Grant Bunter
- Posts: 6912
- Joined: Mon Nov 28, 2011 11:12 am
- Location: Ilfracombe Queensland Australia
- Contact:
Re: Building a dedicated HT room
I reckon the crawl should be after carpet, but before seating and screen. That would allow some juggling in positioning for best node elimination without having to move or remove things like seats and screen...
Built:
DR 250: x 2 melded array, 2x CD horn, March 2012 plans.
T39's: 4 x 20" KL3010LF , 2 x 28" 3012LF.
WH8: x 6 with melded array wired series/parallel.
Bunter's Audio and Lighting "like"s would be most appreciated...
DR 250: x 2 melded array, 2x CD horn, March 2012 plans.
T39's: 4 x 20" KL3010LF , 2 x 28" 3012LF.
WH8: x 6 with melded array wired series/parallel.
Bunter's Audio and Lighting "like"s would be most appreciated...
Re: Building a dedicated HT room
That makes sense. I will probably just have to run wire or at least conduit to multiple semi-educated and desirable locations, since the room will have to be essentially completed before really knowing where the subs will land.
- Bill Fitzmaurice
- Site Admin
- Posts: 29008
- Joined: Tue May 02, 2006 5:59 pm
Re: Building a dedicated HT room
You can self power the subs and use bluetooth transmitter/receivers to make them wireless, so all you need is a nearby AC outlet.
Re: Building a dedicated HT room
There are plenty of sites on the internet regarding placement of subs.
But before you read any, search for a white paper by Todd Welti from Harmon Kardon.
Using computer software he investigated hundreds of sub positions, utilising from one sub up to 20 or more.
For two subs he found the best position was each centered along the front and rear walls, or located in two diagonally opposite corners.
But before you read any, search for a white paper by Todd Welti from Harmon Kardon.
Using computer software he investigated hundreds of sub positions, utilising from one sub up to 20 or more.
For two subs he found the best position was each centered along the front and rear walls, or located in two diagonally opposite corners.
Re: Building a dedicated HT room
when i was building the HTroom/living room i ran empty wire conduit to all the places where the subs could be placed. essentially making a circle around the room. they ended up in opposite corners around the room. the empty conduit has come in handy for other applications to.
Greet ketoet
Greet ketoet
building BFM speakers isn't a hobby , it's an addiction
1 x THT
1 x autotuba
2 x dr250 melded
2 x wedgehorn 10
2 x tlah
1 x THT
1 x autotuba
2 x dr250 melded
2 x wedgehorn 10
2 x tlah
Re: Building a dedicated HT room
@Bill
Bill, in the past you have recommended that if someone is using/building horn-loaded speakers or subs, then all the speakers/subs in a system should be horn-loaded.
However I notice above that you have recommended to the OP to use SLAs for his mains/centre.
But if he was going to include horn-loaded sub(s), would you suggest that the speakers (mains, centre, etc) should be say SLAH (or maybe something else)?
Bill, in the past you have recommended that if someone is using/building horn-loaded speakers or subs, then all the speakers/subs in a system should be horn-loaded.
However I notice above that you have recommended to the OP to use SLAs for his mains/centre.
But if he was going to include horn-loaded sub(s), would you suggest that the speakers (mains, centre, etc) should be say SLAH (or maybe something else)?
- Bill Fitzmaurice
- Site Admin
- Posts: 29008
- Joined: Tue May 02, 2006 5:59 pm
Re: Building a dedicated HT room
That recommendation applies to pro-sound speakers. Even in that genre there are instances where the form factor of horn loaded mains may not be ideal. However, the need for high sensitivity is still there, and for that there's the SLA Pro and TLAH Pro. What you don't want in any scenario is a mixture of low sensitivity and high sensitivity formats.